Search Properties

Cabocerva villa

Torrevieja

750,000€

Department:
Sales
Postcode:
03181
Type:
Villa
Availability:
For Sale
Bedrooms:
4
Bathrooms:
4
Receptions:
1
Location:
Torrevieja
Price:
750,000€

Summary

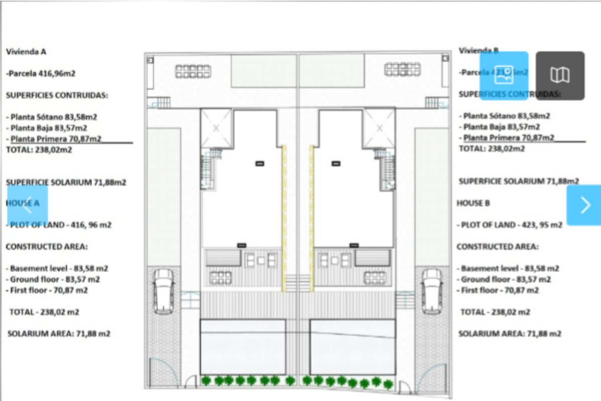
Beautiful new houses soon for sale in Torrevieja, Costa Blanca!!! 4 bedrooms and 4 bathrooms. Plot of land – 420 m, area – 238 m, solarium – 72 m. Own private pool and parking space. 15 minutes walk to the famous La Mata beach (5 minutes by car).

Request Further Details

Or arrange a viewing

Recent Blog Posts

Latest news and updates

The Benefits of Buying a Holiday Home in Costa Blanca 23rd March Buying

The Benefits of Buying a Holiday Home in Costa Blanca

Turn Your Dream into Reality Owning a holiday home in Costa Blanca is more than just a lifestyle upgrade—it’s a…

Read More
Selling Your Property in Costa Blanca: How to Get the Best Price 14th February Selling

Selling Your Property in Costa Blanca: How to Get the Best Price

Maximize Your Home’s Value Before Selling If you’re planning to sell your home in Costa Blanca, you’ll want to make…

Read More
The Best Places to Buy Property in Costa Blanca in 2025 17th January Buying

The Best Places to Buy Property in Costa Blanca in 2025

Why Costa Blanca is the Perfect Investment Destination Costa Blanca continues to be a top choice for homebuyers and investors…

Read More